公司新闻
 
江苏爱彼建设有限公司
衡经理:13375108166
闫经理:18912038666
电 话:0516-83702121
传 真:0516-83702121
邮 箱:1104248252@qq.com
客服QQ:1104248252
地 址:徐州经济技术开发区民营路7号
爱彼建设:负荷容量总计3500kW的工业厂房供电方案设计

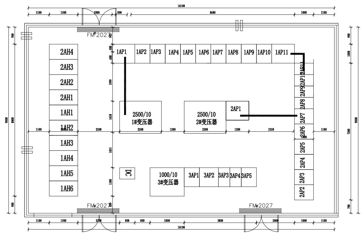
        本项目负荷容量总计3500kW,其中含2500kW二级负荷,故需配置2路10kV供电电源,备供电源容量大于等于2500kVA。



        方案一:

        主供电源一期接入容量2500kVA(设1台2500kVA),考虑后期增容,主供电源预留高压备用柜,配电室内部预留第三台1000kVA变压器使用空间;备供电源接入容量2500kVA(设1台2500kVA );

        配电室电气主接线为分段单母线不带联络,正常变压器同时运行,互为备用,重要负荷低压末端切换。

        配电室高压柜主供电源配置为:1#隔离、计量、PT、进线、变压器出线1、变压器出线2,共计6台;备供电源配置为:2#隔离、计量、PT、变压器出线共计4台;两台2500kVA低压柜数量暂估22台,预留1000kVA变压器低压柜暂估5台,按实调整。仅根据目前已提供资料,本方案配电室暂估10M*16M,设备布置图如下(配电室通道、门窗、结构柱等布局影响设备布置)

图片1.png



         方案二:

        主供电源接入容量3600kVA(设1台2500kVA+1台1600kVA);备供电源接入容量2500kVA(设2台1250kVA );

        配电室电气主接线为分段单母线不带联络,正常变压器同时运行,互为备用,重要负荷低压末端切换。

        配电室高压柜主供电源配置为:1#隔离、计量、PT、进线、变压器出线1、变压器出线2,共计6台;备供电源配置为:2#隔离、计量、PT、进线、变压器出线3、变压器出线4,共计6台;低压柜数量暂估30台,按实调整。本方案配电室暂估10M*18.5M设备布置图如下(配电室通道、门窗、结构柱等布局影响设备布置)


图片2.png



两个方案容量电价对比表:


微信图片_20230214084301.jpg






江苏爱彼建设有限公司电话:0516-83702121传真:0516-83702121 邮箱:1104248252@qq.com 客服QQ:1104248252 地址:徐州经济技术开发区民营路7号
技术支持:徐州慧网